Værksted, lager og adminstration på Hirtshals Havn direkte til Havnebassinet
Ejendommen er beliggende direkte ud til kaj anlæg og havnebassin og der er fin udsigt til havnebassin og Vesterhavet fra ejendommens kontorer og administrations lokaler på 1. sal ligesom der fra ejendommens ude tagterrasse på 1. sal er fantastisk udsigt udover Vesterhavet mod nordvest.
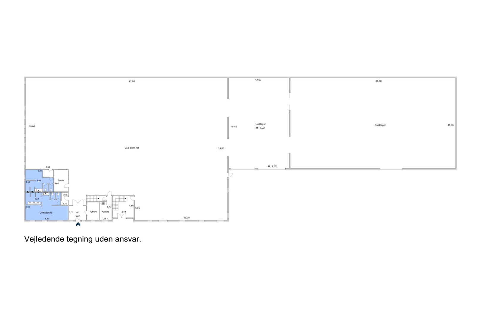
Kajnært lager, og produktionsbygning med tilhørende administration, kantine og arkiv på 1. sal.
Udover hovedbygningen er der en uopvarmet mellembygning der anvendes som garageanlæg - der er god lofts- og port højde - garageanlægget er på 263 m2 og er uopvarmet men med støbt gulv med afløb, samt 665 m2 koldhal indrettet som lager, god lofts og kiphøjde og med støbt bund.
Hovedbygningen er bebygget med 1.287 m2 i stueplan og er opført og indrettet til vodbinderi med tilhørende administration, kantine, og omklædningsfaciliteter samt med en markant indgangsparti med åben trappe til overetagen som dels består af mødelokaler, kontorer, arkiv, samt fordelergang med indgang til toiletter,
kontorer og mødelokaler samt kantine med udgang til vestvendt tagterrasse med kig til Vesterhavet.
Der er et fantastisk kig fra mødelokaler og kontorer ned over den hyggelige inderhavn og et fantastisk havnemiljø.
Overetagen er på ca. 480 m2
Bygningerne er udvendigt delvist facadebehandlet med netpuds og malet.
Bygningerne skal anvendes til havnerelateret formål og ville være fin til bådopbevaring, fiskeredskabsskure i hallen, kold opbevaring samt til produktionslokale med tilhørende administration.
Find mere info om Hirtshals havn på www.PortofHirtshals.dk







































