Velholdt bolig og rummelige erhvervsbygninger sælges i Gærum tæt på Frederikshavn
På Fabriksvej 5 i den hyggelige landsby Gærum udbydes nu en attraktiv ejendom med både bolig og store erhvervsbygninger, oprindeligt opført af smedemester Tage Andersen for godt 40 år siden. Ejendommen ligger i et roligt erhvervsområde med virksomheder som Roblon og Thougaard som nærmeste naboer og har gode tilkørselsforhold.
Boligen er et fritliggende parcelhus på 170 m² i hvide kalksandsten med eternittag og termovinduer i trærammer. Planløsningen rummer:
Vindfang og entré/hall - Stor, lys vinkelstue med skyddedør til stort værelse/aktivitetsrum/gildestue - Spisekøkken i moderne stil - Soveværelse med udgang til overdækket terrasse og haven samt direkte adgang til rummeligt badeværelse - godt værelse - Bryggers med plads til vaskemaskine og tørretumbler - GæstetoiletHaven er helt lukket og privat ideel til både afslapning og børneleg.
Boligen er pt. udlejen årlig leje ekskl. forbrug kr. 81.600,00
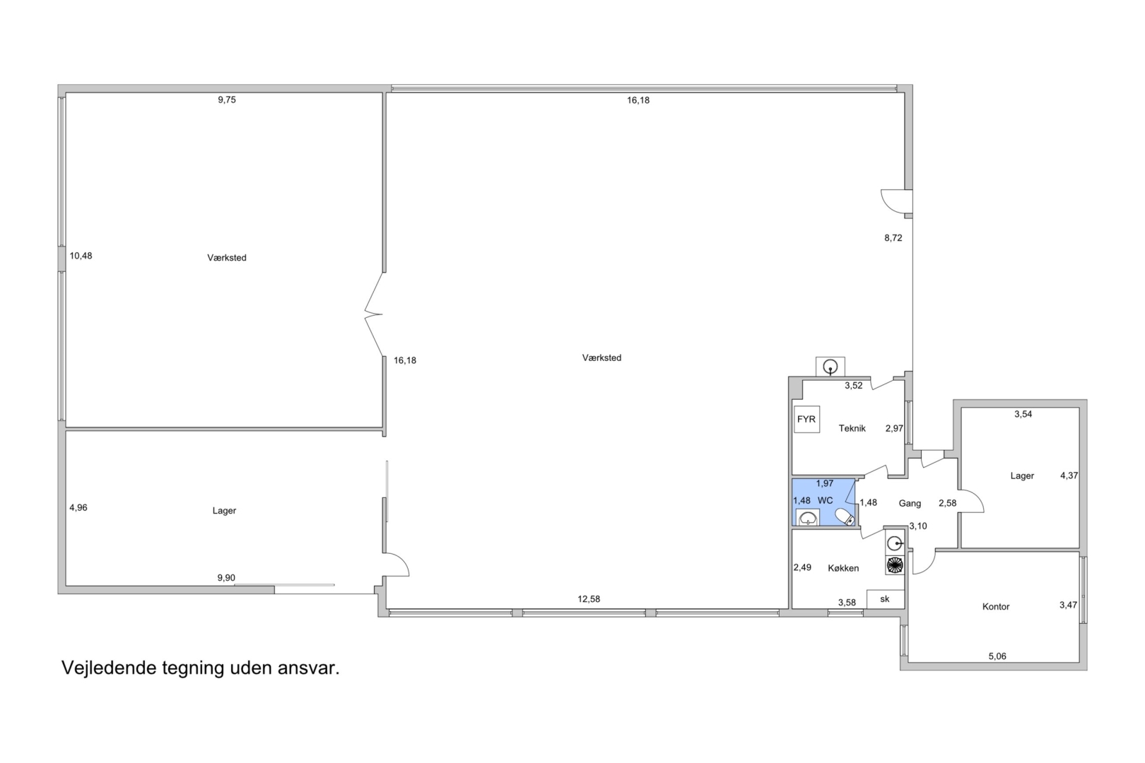
Erhvervsdelen består af:
Et fritliggende værksted på hele 432 m² med to indskudte etager anvendt til lagerformål
Stueplan med regulært værksted, rørlager og administrationsafsnit
Fyrrum med nyere Baxi pillefyr samt naturgasfyr og el-vandvarmere
Kontor med plads til to arbejdsstationer, arkiv, mellemgang og toilet
Desuden en uisoleret og uopvarmet koldhal med ekstra opbevaringsmuligheder
Denne ejendom egner sig perfekt til dig, der søger at kombinere bolig og virksomhed ét sted eller som har behov for god lager- og værkstedsplads tæt på Frederikshavn.
Om Gærum:Gærum er en velfungerende landsby blot 67 km sydvest for Frederikshavn. Her finder du både skole, indkøbsmuligheder og et aktivt foreningsliv, hvilket gør byen attraktiv for både familier og erhvervsdrivende. Naturen er tæt på, og der er gode vejforbindelser til resten af Vendsyssel.






















