Kombineret bolig og erhvervsejendom beliggende i fuldt udbygget bolig og erhvervsområde i Frederikshavn Vestby
Beliggende i et af de få attraktive områder i Frederikshavn, hvor bolig og erhverv kan kombineres.
Ejendommen, opført i røde mursten med eternittag og termoruder, består af både en bolig- og erhvervsdel.
Ejendommen består af en boligdel som indeholder - vindfang - forstue - stort spisekøkken/køkkenalrum med kogeø og god spiseplads - dobbelt dør til opholdsstue - soveværelse - badeværelse med bruseniche - bryggers -
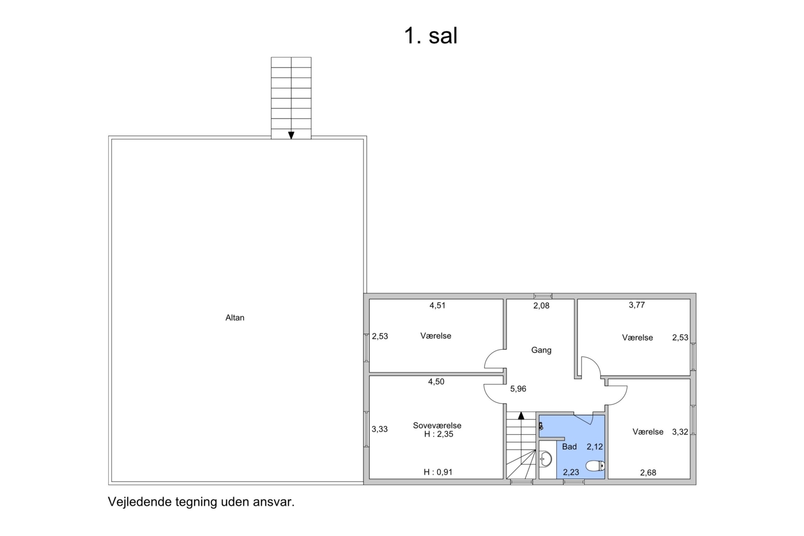
fra mellemgang er der trappe til overetagen som indeholder - forstue - 2 store gavl værelser - badeværelse med bruser - stor tagterrasse
Fra bryggerset er der adgang til værkstedsdelen, som er opdelt i to rum: et opvarmet værksted og et uopvarmet lager. Begge rum har porte. Derudover er der carport og flere disponible bygninger med træbeklædning.
Ejendommen ligger på en 2650 m² stor grund og sælges som dødsbo.
Med gode tilkørselsforhold, kun 100 meter fra omfartsvejen Suderbovej, der forbinder Brønderslevvej og Hjørringvej, er dette en ideel ejendom til eksempelvis tømrerværksted, elektrikerfirma, smedeværksted, malerværksted eller andre erhverv i tilknytning til boligen.
Denne ejendom byder på unikke muligheder for at kombinere bolig og erhverv i et attraktivt område.
Lidt om Frederikshavn.........
Frederikshavn er den lille storby med de mange oplevelser - året rundt!
Byen med Palmestrand, byliv og shopping.
Byen med oplevelses tilbud for en hver smag.
Byen hvor Tordenskjold og andet godtfolk anno 1717 mødes.
Byen med de store events, de mange koncerter, de mange forskellige overnatnings tilbud og de attraktive
restauranter.
I Frederikshavn tilbydes du shopping i et internationalt miljø, mulighed for overnatning, et aktivt udeliv i den
skønne natur, der spænder fra attraktive strande mod nord til skovens dybe stille ro ved Bangsbo i syd.
Byen tiltrækker med Arena Nord og Det Musiske Hus hvert år store uden- og indenlandske artister, ligesom
lokale bands og skuespillere udfolder sig på de mange scener.
Gastronomien i Frederikshavn er et kapitel for sig. Du har mulighed for at nyde gastronomi i høj klasse på
flere af byens innovative og traditionsrige restauranter, hvor de lokale råvarer forkæles til glæde for
gæsterne.
2 km gågade ... det er ikke en drøm, men virkeligheden i Frederikshavn.
Butikkerne bugner af gode tilbud. Bliv fristet i special butikkerne eller find lækkert nyt i de mange
livstilsbutikker.




























