170 m2 et palns kontor ejendom med valmet tag og med cementtagsten
Velholdt rødstensejendom fra 2001 med ideelt erhvervsareal Perfekt til din virksomhed!
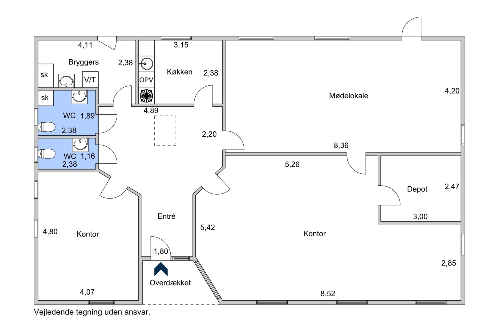
Denne moderne ejendom byder på et lyst og funktionelt erhvervsareal på 170 m² og en stor grund på 1.576 m², som giver rig mulighed for både vækst og effektivitet.Ejendommens indretning er praktisk og fleksibel med følgende faciliteter:
Indbydende hall med flotte klinkegulve, der skaber et professionelt førstehåndsindtryk
Stort mødelokale med direkte udgang til en solrig vestvendt terrasse perfekt til møder og pauser
Ekspeditionskontor med plads til 2 arbejdspladser, ideelt til administration eller kundehåndtering
Arkiv med krydsfelt og ledningsføring til kabelbakker, hvilket sikrer god opbevaring og systematisering
Veludstyret køkken med opvaskemaskine, kogeplader, køleskab og spiseplads til 4 den perfekte base til frokoster og pauser
Der er særdeles gode flisebelagte parkeringsarealer. Mere end 20 stk.



























