289 m2 lager/værksted med travers kran og 50 m2 kontor på DOKØEN
289 M² LAGERLOKALE og 50 M² kontor TIL LEJE PÅ DOKØEN I FREDERIKSHAVN
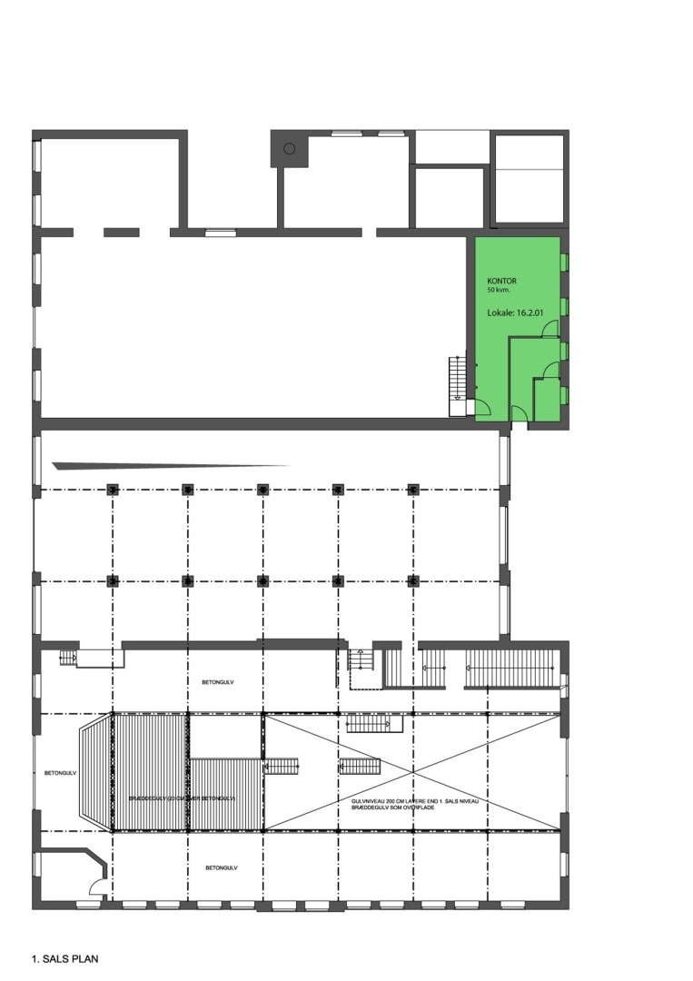
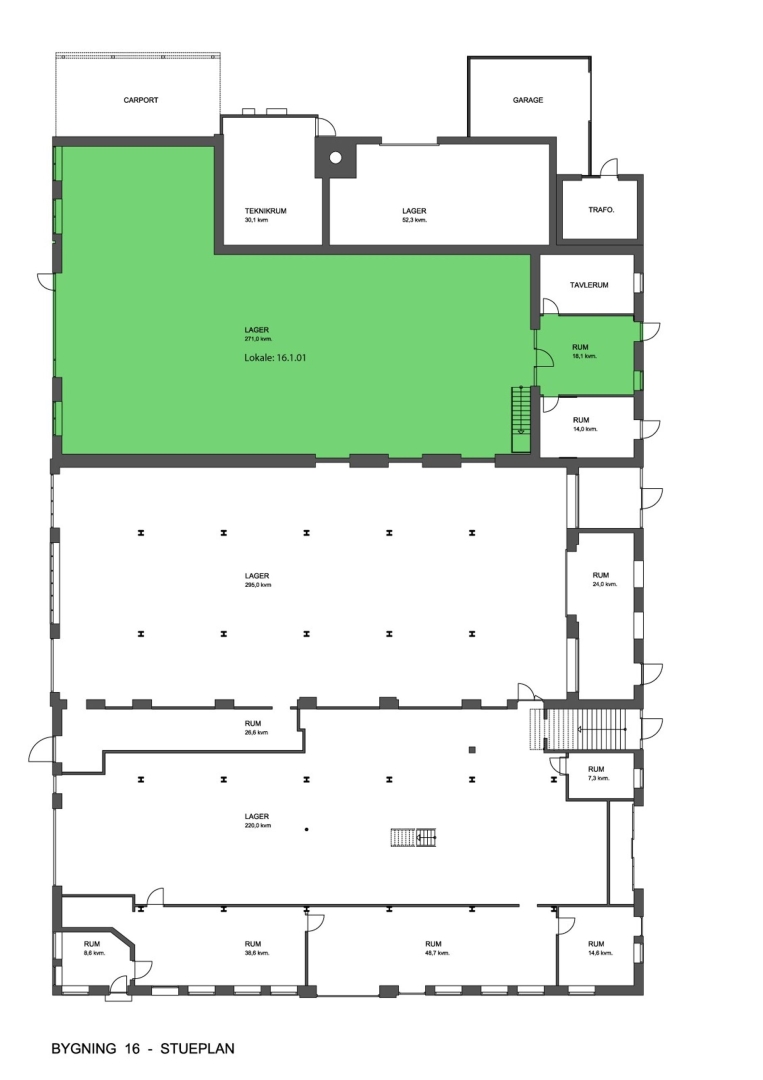
Lej et rummeligt lager på DOKØEN i Frederikshavn på 289 m² lagerplads og et tilhørende 50 m²
kontorområde. Lager lejemålet inkluderer 1 rummeligt lagerlokaler med højt til loftet, et mindre lagerlokale,
et kontor samt tekøkken og toilet. Du finder disse faciliteter i bygning 16 på Havnepladsen 12 i
Frederikshavn.
Udover lager- og kontorrummene tilbyder vi også en loftskran, som er inkluderet i lejemålet. Direkte
adgang til lagerlokalet via høj port. Ydermere får du adgang til en fælles kantine og mødelokaler i
kælderen i bygning 10 på DOKØEN. Vores lager kombinerer mange kvadratmeter med førsteklasses
faciliteter til både opbevarings- og administrative behov, samt muligheden for at udvide med yderligere
services.
UDLEJNING AF LAGERLOKALER OG KONTORLOKALER
Vi udlejer en lang række forskellige lokaler og bygninger til erhvervsformål, som vil kunne opfylde dine
behov. Vi har mere end 50.000 m² bygninger og værftsfaciliteter på det tidligere Danyard-område på
havnen i Frederikshavn. Disse bygninger og faciliteter er fordelt på to områder: Andelskajen og DOKØEN.
Hvis du lejer et lager eller kontorlokaler hos os, vil du blive en del af et inspirerende og historisk maritimt
miljø, hvor flere andre attraktive virksomheder også holder til. Nogle af disse virksomheder inkluderer
Scanel, VMS Vestergaard Marine, Orskov og mange andre.
Vi er stolte af at kunne tilbyde erhvervsdrivende et bredt udvalg af forskelligartede bygninger, lokaler og
faciliteter, som vil kunne opfylde forskellige behov. Vores mål er at sikre, at du har de nødvendige faciliteter
og omgivelser til at drive din virksomhed på bedste vis.
Vi har en lang række forskellige lager- og kontorlokaler, som vil kunne imødekomme forskellige størrelser
og krav. Vi tilbyder også skræddersyede løsninger, så du kan finde de faciliteter, der passer bedst til din
virksomhed. Derudover er vores faciliteter beliggende på en strategisk placering på havnen i
Frederikshavn, som gør det nemt at transportere varer og materialer til og fra lejemålene.
Vores fokus er på at tilbyde den bedst mulige service til vores kunder. Vi sørger for, at vores bygninger og
faciliteter er i top stand, og at der altid er tilstrækkelige ressourcer og hjælp til rådighed for vores lejere.
Kontakt os i dag for mere information om vores udlejning af lager- og kontorlokaler.














