Centralt beliggende ejendom opdelt i 3 enheder
Midt i Ålbæk finder I denne ejendom, som er opdelt i 3 enheder med hovedhus på 184 m², med stuelejlighed på 111 m² og lejlighed på 1. sal på 73 m². Bygning 2 er på 60 m² med 38 m² i stueplan og 22 m² på 1. sal. Med denne beliggenhed er man i gåafstand til indkøb, skole, børnehave, idrætscenter, stationen, skov og strand alt i alt en central placering i Ålbæk.
Grunden er på 360 m², og har udover de to bygninger et vaskehus med fælles vaskefaciliteter samt et opbevaringsrum dertil er der en fælles gårdhave. 
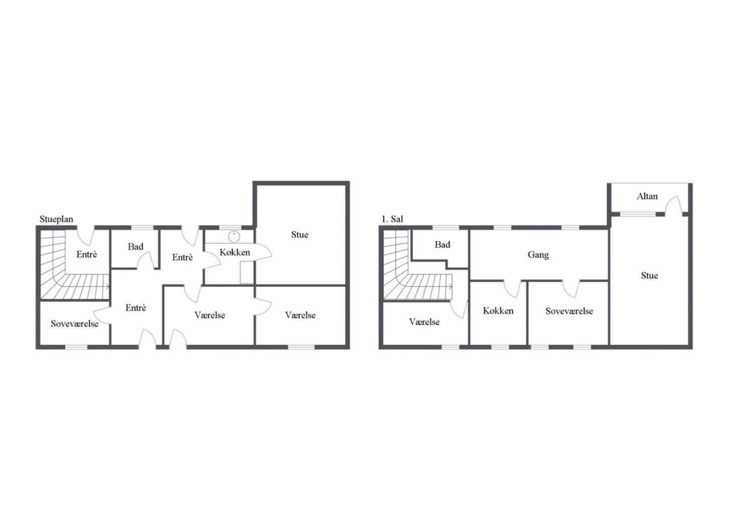
Stuelejlighed er indrettet med: Entré  Køkken  Stue  Værelse  Badeværelse med brusekabine  Værelse.
Lejlighed på 1. sal: Entré med trappe  Fordelingsgang  Værelse  Badeværelse med brusekabine  Køkken  Soveværelse  Stue med balkon. 
Anneks indeholder: Entré med trappe til 1. sal  Badeværelse m. brusekabine  Kombineret køkken med opholdsstue med synlige bjælker  På 1. sal er der repos samt 1 soveværelse. 
Ejendommen bliver i dag brugt som en udlejningsejendom, men er i øjeblikket fri for udlejning.



















