En af Frederikshavns mest markante bygninger udbydes til salg
Særdeles velholdt fuldt udlejet bygning med et etageareal på 795 m2 fordelt med kælder, stueplan, 1. sal og 2.sal udbydes nu til salg.
Ejendommen, hvor der siden 1923 har været drevet apotek med kun 7 forskellige apotekere.
Ejendommen er markant beliggende på det attraktive Fisketorv og gågade i Frederikshavn midtby, hvor flere store kæde og andre lækre butikker er beliggende.
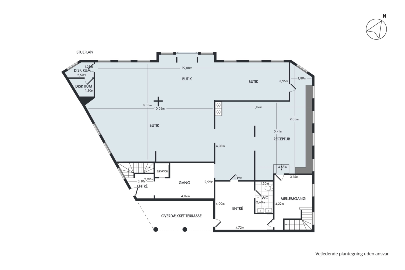
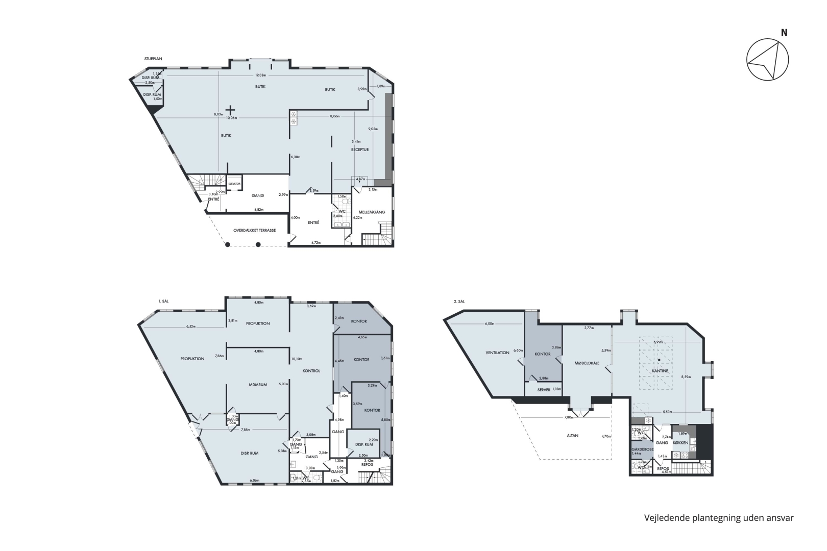
Ejendommen indeholder:
Kælder: med fordelergang, personale omklædning og bad og toilet, bryggers med vaskemaskine og tørretumbler, pakkerum og elevator, teknikrum, lager m.v. De fleste af gulvene er belagt med klinker.
 
Stueplan: direkte handicapvenlig indgang til apotekets regulære butikslokale der har linoleums gulvbelægning og akustiklofter med fast grundbelysning, kontor, toilet, baglokale med vare elevator der går fra stueplan til kælder og til 1. sal.  
Mellemgang med trappe til 1. og 2. sal og trappe til kælder, samt bagtrappe til 1. sal. i forbindelse 
med personale indgang
1. sal indeholder, velindrettet produktionslokale med maskiner til produktion af dosis pakke medicin, herunder foto dokumentations kontrol af produktionen, 3 kontorer, mellemgang, toilet og 3 disponible rum/kontorer  m.v.
2. sal Indeholder super lækker kantine med mødelokale og med loft til kipe og synlige spær, køkken, 2 toiletter - kontor med plads til mødebord og udgang til sydøstvendt tagterrasse, disponibelt rum, teknikrum m.v.
Alt i meget fin stand.
Ejendommen er løbende renoveret og i 2009 med nyt tag og ny smagfuldt indrettet 2. sal.
En sjældent udbudt ejendom udlejet med 10 års uopsigelig lejekontrakt.
Velkommen til Frederikshavn
Frederikshavn er den lille storby med de mange muligheder! Byen med Palmestrand, byliv og shopping. 
Byen med oplevelsestilbud for enhver smag, mange forskellige overnatningstilbud og attraktive 
restauranter. Byen med virksomheder i vækst, især centreret omkring den ny havn og inden for den grønne omstilling.
Byen tiltrækker med Arena Nord og Det Musiske Hus hvert år store sportsbegivenheder samt uden- og indenlandske artister, ligesom lokale bands og skuespillere udfolder sig på de mange scener. 
Gastronomien i Frederikshavn er et kapitel for sig. Du har mulighed for at nyde gastronomi i høj klasse på flere af byens innovative og traditionsrige restauranter, hvor de lokale råvarer forkæles til glæde for gæsterne.
Frederikshavn byder på en nyrenoveret gågade med et bredt udvalg af specialforretninger og har netop startet planarbejdet for den fremtidige indretning og udnyttelse af midtbyen. Samtidig er der de senere år sket en kraftig udvikling af Vestbyen med store supermarkeder, lektronikforretninger m.v.
Frederikshavn har gennem årene ændret sin erhvervsprofil og er gået fra at være en traditionel havne- og industriby til en by med højteknologiske virksomheder inden for grøn omstilling, fødevarer, oplevelsesøkonomi og selvfølgelig hele det maritime område, hvor generationers ekspertise og nutidig innovation sikrer en stærk position inden for grøn maritim teknologi.
Byens største arbejdspladser er:
Frederikshavn Kommune
Flådestation Frederikshavn
MAN Energy Solutions
Regionshospital Nordjylland, tidl. Frederikshavn-Skagen Sygehus
M.A.R.S.
Orskov Yard
ATP og Udbetaling Danmark
Havnen er i rivende udvikling
Frederikshavn Havn er en moderne erhvervshavn med strategisk placering mellem Nordsøen og 
Østersøen, gode faciliteter og et service-setup, der sikrer hurtig og effektiv håndtering af skibe og last. 
Havnen har en ambitiøs investeringsplan og en klar strategi om også i fremtiden at tilbyde de bedste faciliteter og maritim service i verdensklasse.
Over de seneste år er havnen udvidet til dobbelt størrelse og en dybgang på 16 meter i bassiner og sejlrende. På den ny havn er bl.a. etableret Europas første anlæg til miljørigtigt ophug af boreplatforme.
Skandinaviens største anlæg til forsyning af skibsfarten med miljøvenligt brændstof og en fabrik til produktion af flydende biogas til brug i skibe og lastbiler. Herved er skabt flere hundrede nye 
arbejdspladser, og flere spændende virksomheder er på vej. Et 1000 ha stort erhvervsareal er udlagt til virksomheder inden for den grønne omstilling.















