Attraktivt beliggende forretningsejendom med bolig på 1. sal i Sindal
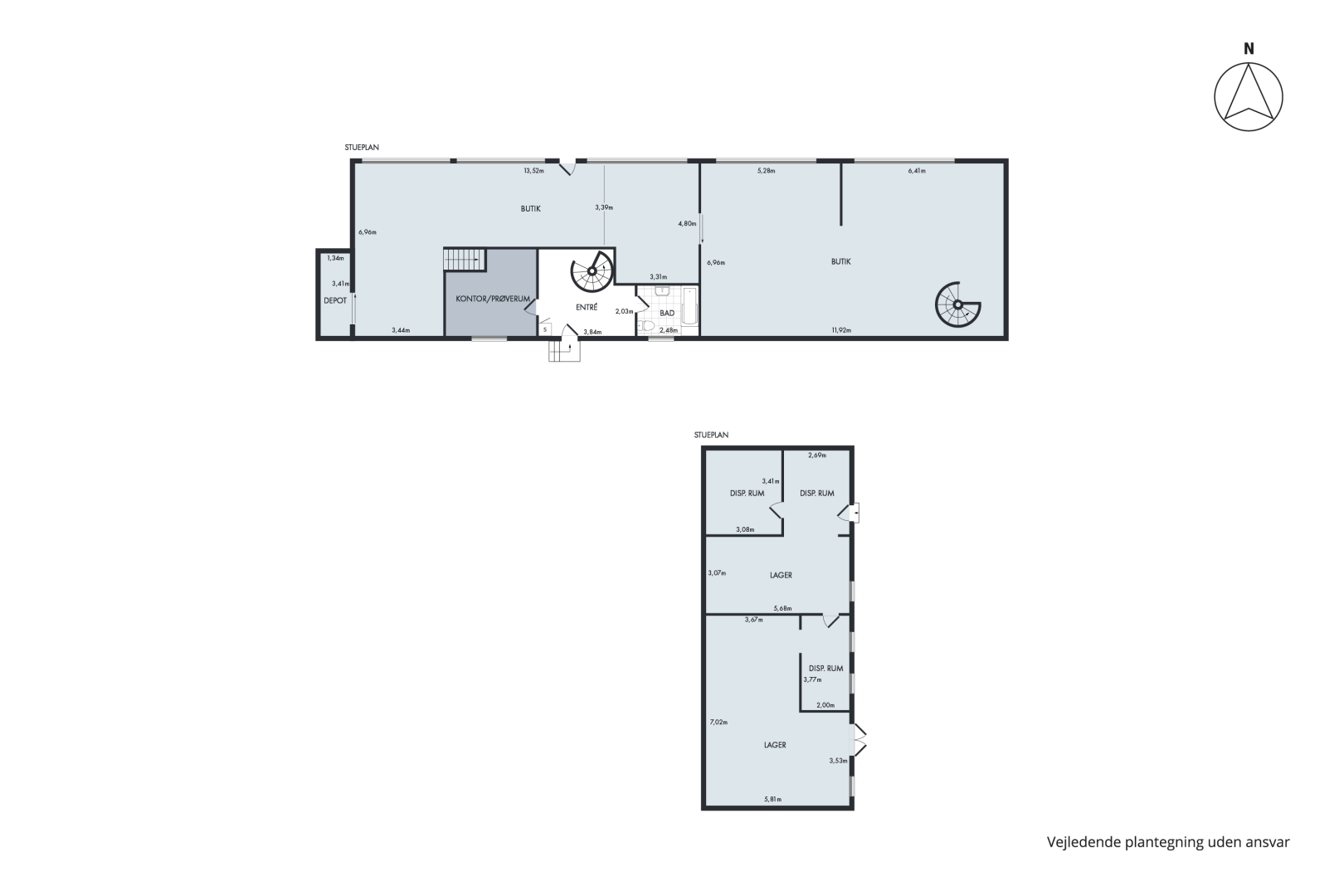
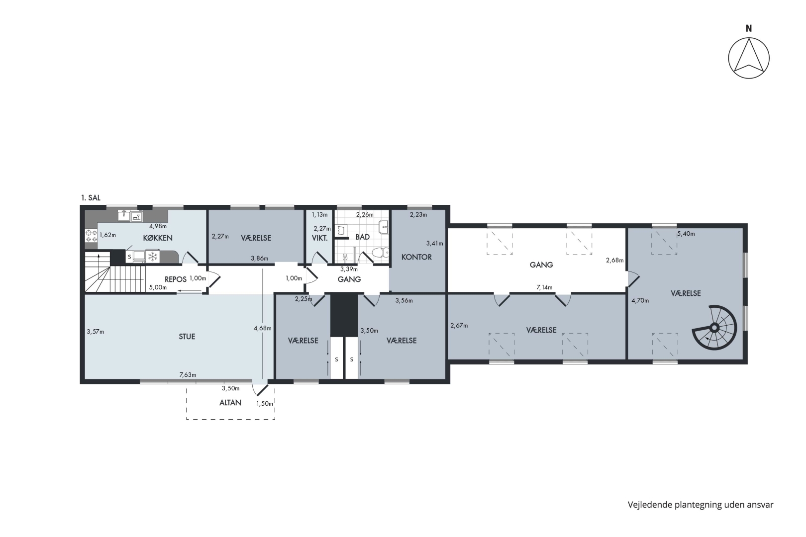
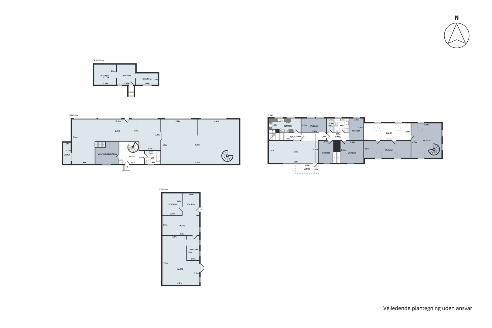
Velbeliggende og velholdt blandet bolig og erhvervsejendom bestående af 228 m2 butik og 188 m2 bolig på 1. sal samt 80 m2 fritliggende lager.
Ejendommen indeholder 2 regulære butikslokaler med tæppe og linoleum belægning, malede lofter og malede og tapetserede vægge og meget bred facade med gode udstillingsvinduer.
Der er fra butiks lokalet indgang til mindre lagerrum og 2 trapper til 1. sal der indeholder og anvendes som lager og kontor og kantine samt velfærdsrum og toilet/badeværelse. 1. salen har tidligere været anvendt som bolig og er registreret som bolig på BBR ejermeddelelsen.
Der er endv. tørt fritliggende fint lager på ca. 80 m2.
Der er gode tilkørselsforhold og gode parkeringsforhold lige i nærheden.
Ejendommen der er beliggende på Strøget mellem Frederikshavn og Hjørring hvor ejendommen passeres af masser af trafikanter.
En ejendom med masser af muligheder.
Sindal var selvstændig kommune indtil kommunesammenlægning hvor Sindal kommune blev indlemmet i Hjørring kommune.
Sindal er placeret centralt i Vendsyssel med ca. 14 km til Hjørring og 20 km til Frederikshavn.
I Sindal er der en god aktivitet med bl.a. 2 store supermarkeder - Rema 1000 og Superland. og der er i øjeblikket ved at blive opført et nyt plejecenter.




















